Le projet :
L‘avis du client :
TYPE D'ACCOMPAGNEMENT
Accompagnement “Moodboard projection” puis ajout d’une prestation de plan final côté pour l’entrepreneur.
LA DEMANDE DU CLIENT
Le client souhaitait un réaménagement et une modernisation de sa salle de bain.
Les souhaits principaux été d’avoir tout d’une grande salle de bain fonctionnelle sans pousser les murs, en bref une optimisation maximale pour lui donner toute sa fonction.
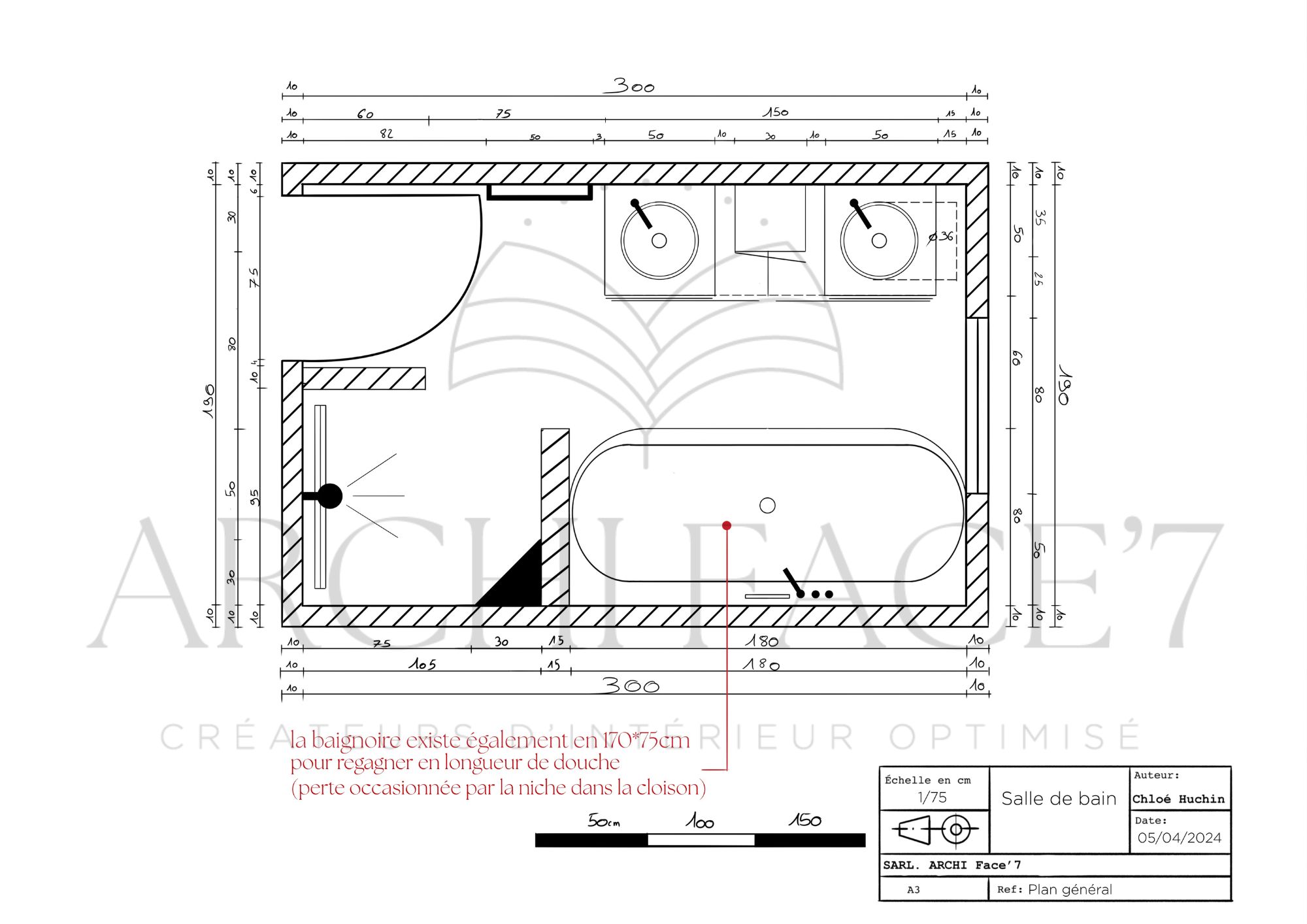
A l’issue de cette approche, le client a émis le souhait d’obtenir le plan final côté afin de le transmettre à son entrepreneur et ainsi effectuer les travaux avec tous les éléments techniques et visuels.
La salle de bain de 5,7m2 transformée et optimisée avec des clients satisfaits !
« Chloé et Marie prennent bien le temps d’écouter la demande de leur client, travail réfléchit et exécuter sans précipitation.
N’hésitez pas à prendre contact avec eux si vous cherchez à optimiser votre agencement intérieur. »
Le projet en photos
salle de bain
l’inspiration
la shopping-list
visuels
visuels
le plan côté
Suivez nos réalisations et notre actualité sur nos réseaux sociaux
Envie de nous confier votre projet ?
Contactez-nous.
Nous serons ravies de vous accompagner grâce à nos prestations ajustables à tous vos projets d'intérieur.




